Fire Station AutoCAD File

Fire Station AutoCAD File
Profile

Uploaded by:

Priyanka

Patel

Description
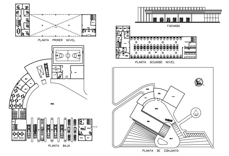
Fire Station AutoCAD File, This Design Fire Station Design Draw in AutoCAD format. and Lay-out Design, Elevation design. Fire Station Design, Fire Station DWG file.
Profile

Uploaded by:

Priyanka

Patel

find Latest

Related Files

WhatsApp Chat