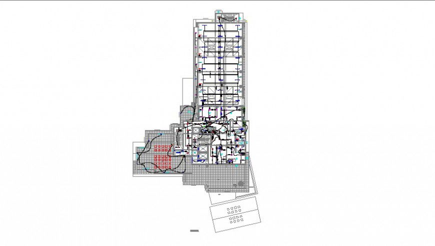
Single story building plan and electrical installation 2d view layout file in dwg format
Description
Single story building plan and electrical installation 2d view layout file in dwg format, plan view detail, wall and flooring detail, electrical wires detail, floor level detail, earthing wire detail, fuse and switch detail, hatching detail, not to scale drawing, etc.

Uploaded by:
Eiz
Luna

