Distribution plan details of classic restaurant cad drawing details dwg file
Description
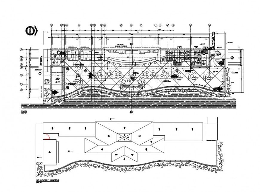
Distribution plan details of classic restaurant cad drawing details that includes a detailed view of parking area, outdoor garden, reception area, waiting lounge, dining area, banquet hall, kitchen, cleaning department, staff room, sanitary facilities, furniture details, interior details, laundry department, spa, gym, back yard garden, service area and much more of restaurant details.

Uploaded by:
Eiz
Luna

