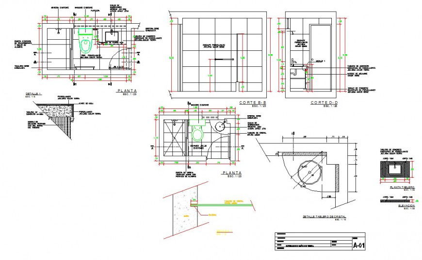
Plan and sectional detail of sanitary bathroom block detail 2d view autocad file
Description
Plan and sectional detail of sanitary bathroom block detail 2d view autocad file, plan view detail, wall and flooring detail, scale 1:25 detail, washbasin detail, water closet detail, door and vent detail, namings detail, section line detail, hanger detail, section detail, etc.
File Type:
DWG
File Size:
194 KB
Category::
Interior Design
Sub Category::
Bathroom Interior Design
type:
Gold

Uploaded by:
Eiz
Luna

