Low risk maternal hospital floors layout plan details with sanitary installation dwg file
Description
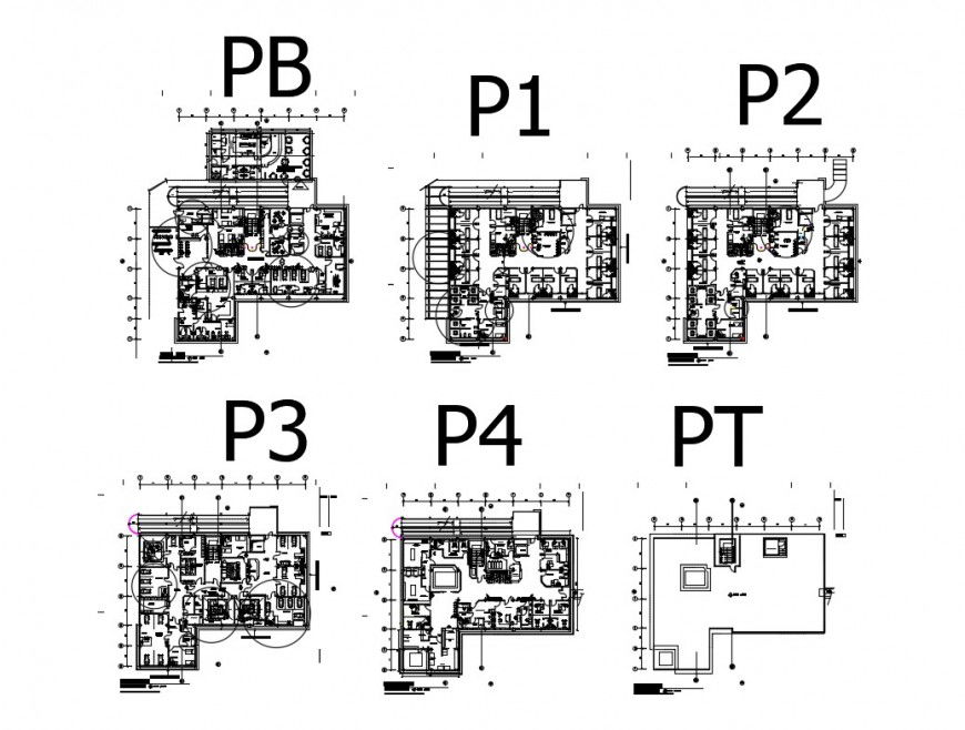
Low risk maternal hospital floors layout plan details with sanitary installation that includes a detailed view of reception area, waiting area specialized departments, operation theater, cleaning departments, pharmacy stores, special and general ward, specimen collection, emergency laboratory, imagenology, laboratories, circumbulatory, waiting rooms, sanitary man, duct, central nursing, sanitary, x-ray room, tomography, mastography and desitography, rest area and sanitary, development and printing , interpretation, emergency laboratory, special tests, washing and stirilization, classification and distribution of samples, washing and sterilization, culture media and much more of hospital project.

Uploaded by:
Eiz
Luna
