Ground and first floor plan details of shopping mall building dwg file
Description
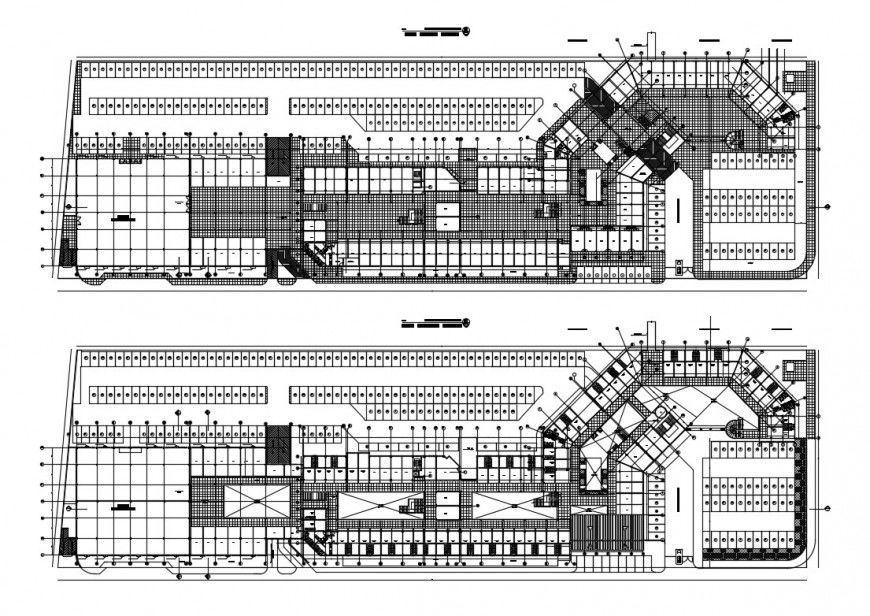
Ground and first floor plan details of shopping mall building that includes a detailed view of ground floor, second floor etc with main enetry gate, security check, corporate offices, departmental stores, brandes stores, parking floor, loading and trasportation trucks parking area, shops and showroos, elevators, food stores, hotels and restaurants, salon and tattoo shops, party lounge, theater, retail markets, kids game zone, chocolate room, multi purpose stores, crockery stores, beauty stores, sanitary facilities of all floors of male and female, lift details, spa centers, horror house and much more of shopping mall floor details.

Uploaded by:
Eiz
Luna

