Roof structure, cover plan and construction details of school building dwg file
Description
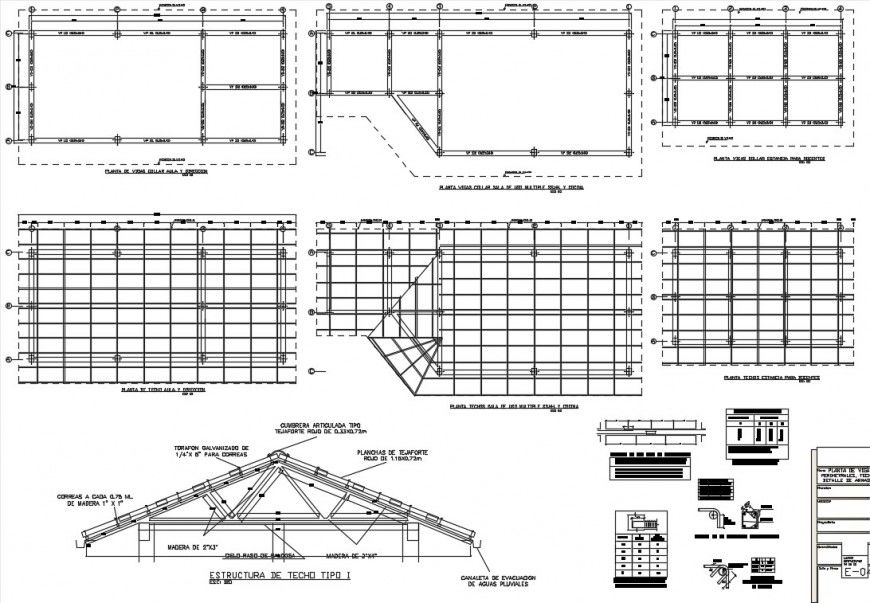
Roof structure, cover plan and construction details of school building that includes a detailed view of foundation plan, structure details, floor construction, beam construction, floor wise structure and constructive details with memory of materials, footings details, staircase construction and sectional details, steps details, dimensions, column view, beam construction, covers closure type and , soil burried wall closure typeand much more of roof constructio details.

Uploaded by:
Eiz
Luna

