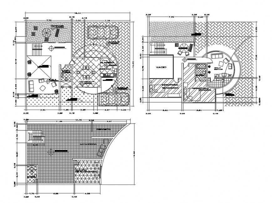
Single family house ground, first and terrace floor plan cad drawing details dwg file
Description
Single family house ground, first and terrace floor plan cad drawing details that includes a detailed view of main entry house door, drawing room, living room, family hall, kitchen, dining area, indoor staircases, laundry area, balcony, bedroom, master bedroom, toilets and bathroom, indoor doors, furniture details and much more of house floor plan project.

Uploaded by:
Eiz
Luna
