Water purification plant detail 2d view layout plan in autocad format
Description
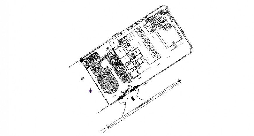
Water purification plant detail 2d view layout plan in autocad format, plan view detail, storage tank detail, flocculator tank detail, plumbing pipe detail, sedimentation tank detail, trickling filter tank detail, hatching detail, not to scale drawing, etc.
Uploaded by:
Eiz
Luna

