Settling Tank Plan & Section 2D CAD Water Treatment DWG File
Description
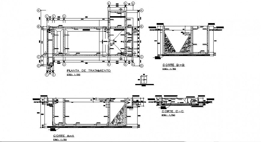
Settling tank detail plan and section 2d view CAD water treatment block autocad file, plan view detail, dimension detail, scale 1;50 detail, concrete masonry detail, hidden line detail, section line detail, reinforcement detail, water level detail, section detail, etc.
File Type:
3d max
File Size:
529 KB
Category::
Urban Design
Sub Category::
Town Water Treatment Design
type:
Gold

Uploaded by:
Eiz
Luna
