Maternal infant hospital elevation, section and floor plan details dwg file
Description
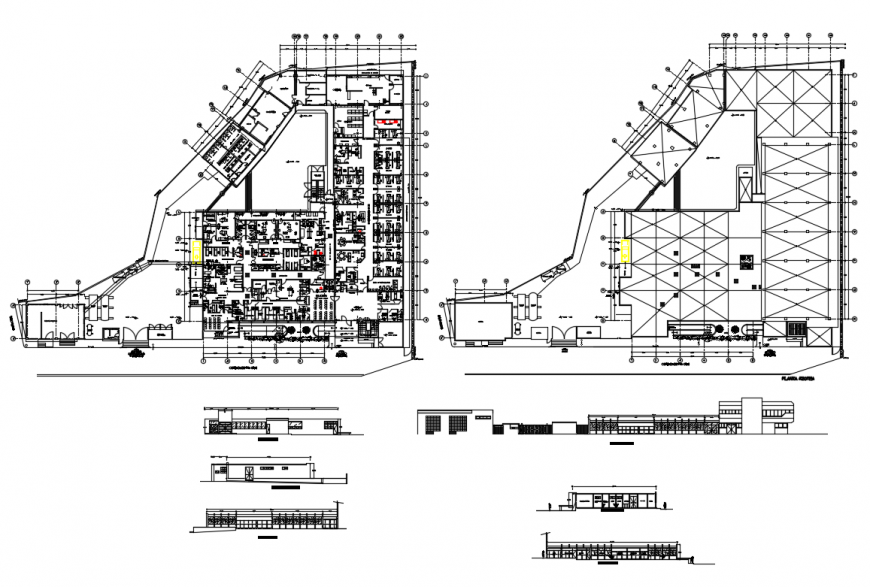
Maternal infant hospital elevation, section and floor plan details that includes a detailed view of , flooring view, doors and windows view, staircase view, balcony view, wall design, dimensions, roof or terrace view, car parking view, flooring view, doors and windows view, staircase view, balcony view, wall design, dimensions, roof or terrace view, car parking view, specialized departments, operation theater, cleaning departments, pharmacy stores, special and general ward, specimen collection, emergency laboratory, imagenology, laboratories, circumbulatory, waiting rooms, sanitary man, duct, central nursing, sanitary, x-ray room, tomography, mastography and desitography, rest area and sanitary, development and printing , interpretation, emergency laboratory, special tests, washing and stirilization, classification and distribution of samples, washing and sterilization, culture media and much more of hospital project.

Uploaded by:
Eiz
Luna

