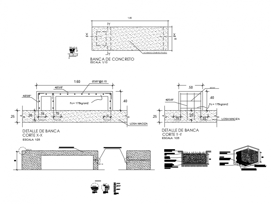
Concrete banking and wall construction cad drawing details dwg file
Description
Concrete banking and wall construction cad drawing details that includes a detailed view of layer- wall core polystyrene base material thickness of, layer-3 of wall of "to the base of concrete of thickness, concrete chain, rebar steel rod ", stirrup for chain frame ", Hollow for fastening and assembly. pvc base material, round "so" for post-tensioning, steel plate, see detail pl, reinforcement rod square cms and much more of wall details.
File Type:
DWG
File Size:
3.4 MB
Category::
Construction
Sub Category::
Construction Detail Drawings
type:
Gold

Uploaded by:
Eiz
Luna

