Hotel building plan view layout 2d view autocad file
Description
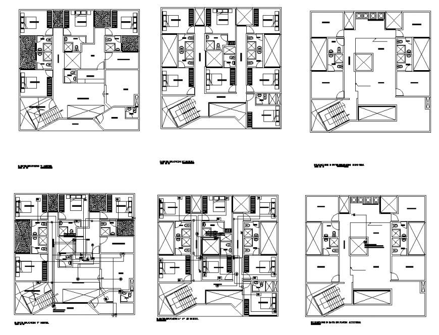
Hotel building plan view layout 2d view autocad file, plan view detail, staircase detail, furniture detail, door and window detail, dimension detail, wall detail, floor level detail, terrace detail, floor detail, bedroom detail, furniture detail, in table, bed and chair detail, naming detail, toilet and sink detail, scale detail,corridor detail, etc.
Uploaded by:
Eiz
Luna

