Grill and roof structure detail elevation 2d view layout autocad file
Description
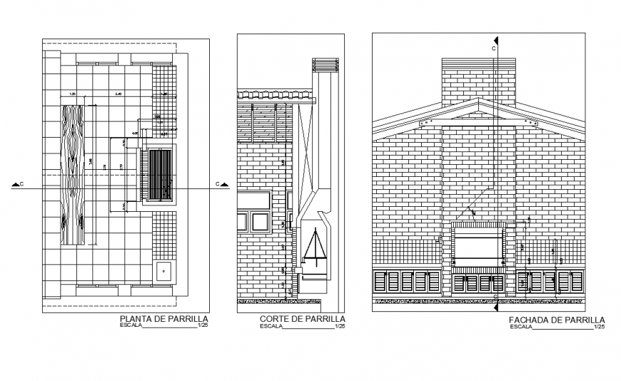
Grill and roof structure detail elevation 2d view layout autocad file, plan view detail, brick masonry detail, scale 1:25 detail, steel frame detail, dimension detail, brick standard size 19*9*9 cm detail, section line detail, section detail, front elevation detail, hidden line detail, timber detail, hatching detail, roof detail, nut bolt required joints and connection detail, etc.
Uploaded by:
Eiz
Luna

