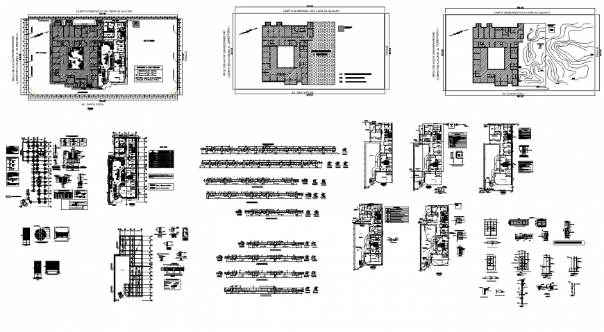
Column, beam and slab structure layout 2d view autocad file
Description
Column, beam and slab structure layout 2d view autocad file, cut out detail, reinforcement in tension and compression zone detail, effective cover detail, diemsnion detail, stirrups detail, top elevation detail, hatching detail, legend detail, specification detail, main and seondary bar detail, etc.
Uploaded by:
Eiz
Luna

