Floor plan of hotel with architecture design dwg file
Description
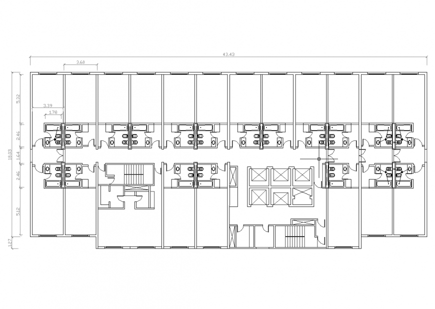
Floor plan of hotel with architecture design dwg file in plan with detail of wall and area distribution and door detail,bedroom detail with bed,washing area detail,stair detail,necessary dimension detail in plan.
Uploaded by:
Eiz
Luna

