Kitchen Elevation and section detail and furniture detail dwg file
Description
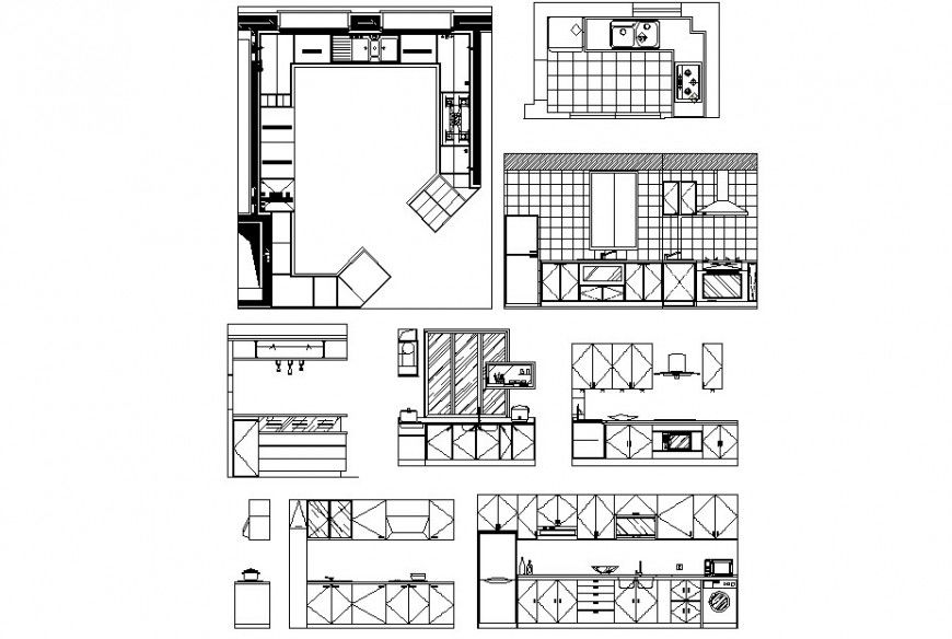
Kitchen Elevation and section detail and furniture detail dwg file ,,here there is front and sectional detail of a kitchen, drawers, shelves, plan detail of a kitchen,window detail etc
Uploaded by:
Eiz
Luna

