Beam detail design of common local bridge design drawing
Description
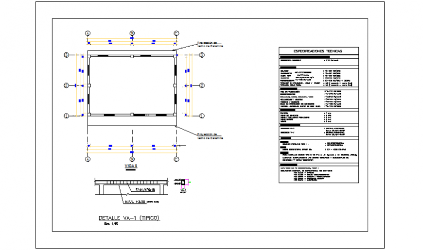
Here the Beam detail design of common local bridge design drawing with Plan design drawing and elevation and section elevation design drawing and technical specification mentioned in this auto cad file.
Uploaded by:
Eiz
Luna

