simple house layout

simple house layout
Profile

Uploaded by:

helly

panchal

Description
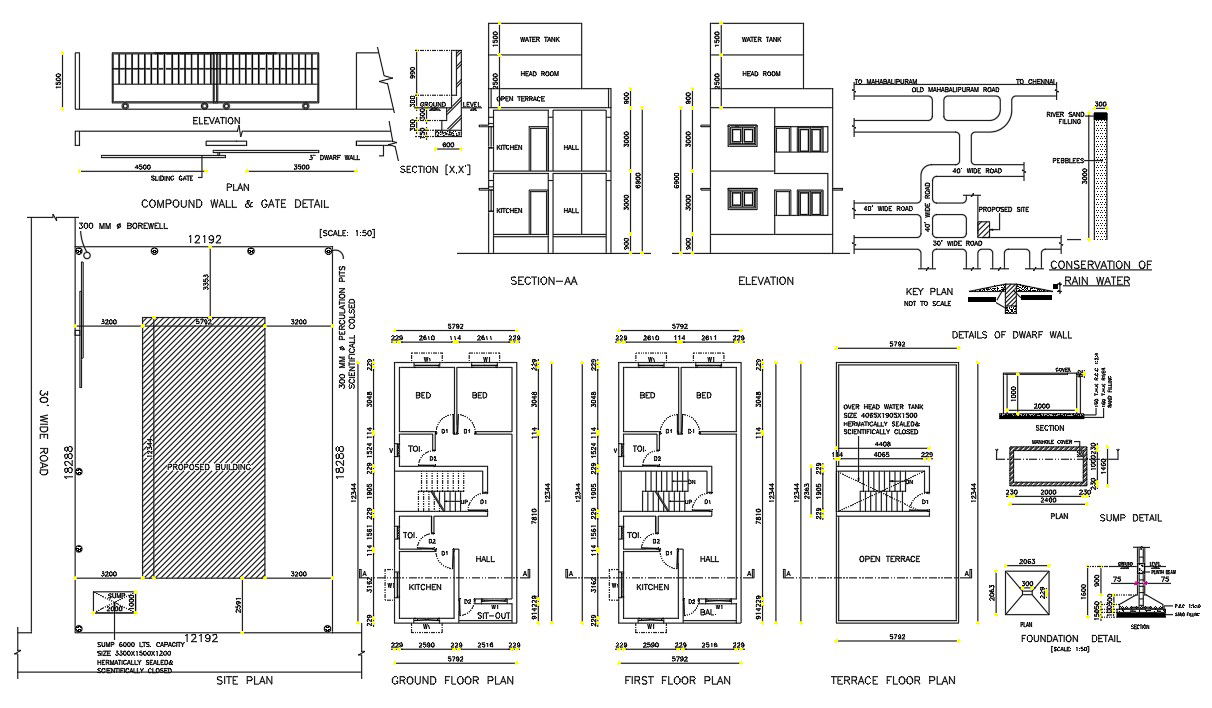
simple house layout download file, A house is a building that is made for people to live in, A file draw in autocad fromat. simple house layout dwg file, simple house layout details
Profile

Uploaded by:

helly

panchal

find Latest

Related Files

WhatsApp Chat