Office plan with detailing dwg file.
Description
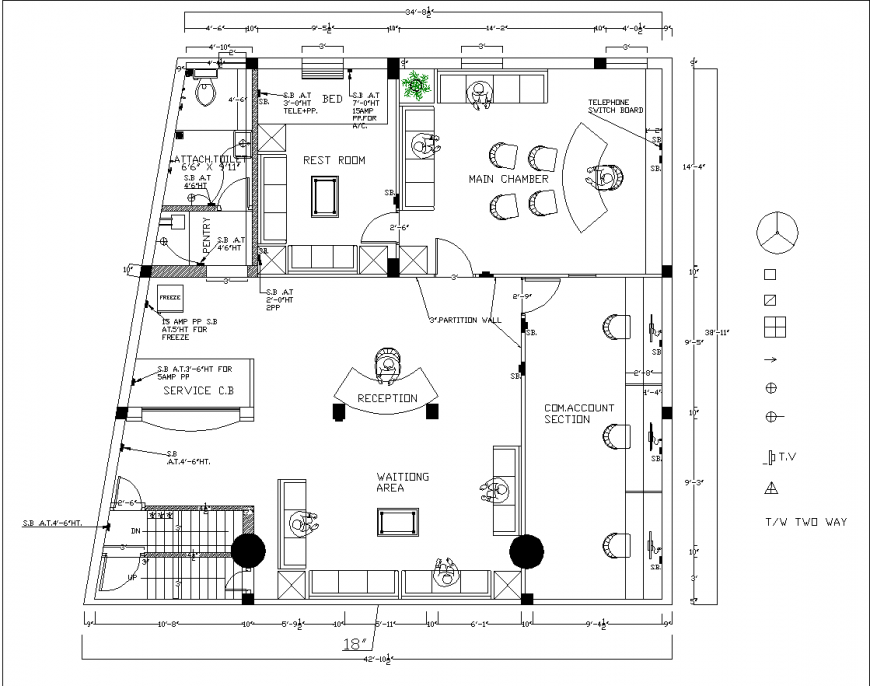
Office plan with detailing dwg file. The top view office plan with the detailing of furnitures, cabins, doors, windows, conference rooms, pantry, parking space, etc., The furniture detailing such as table chairs, conference chairs, waiting seating, etc.,
File Type:
DWG
File Size:
2.4 MB
Category::
Interior Design
Sub Category::
Modern Office Interior Design
type:
Gold
Uploaded by:
Eiz
Luna

