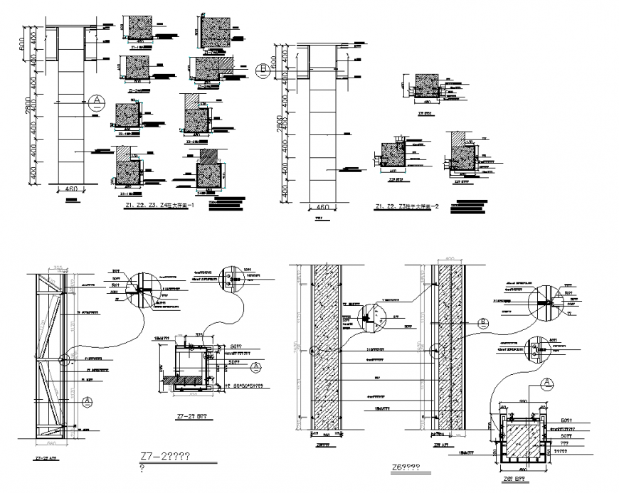
Construction design of pillar plan and elevation dwg file
Description
Construction design of pillar plan and elevation dwg file in plan with detail of pillar area and design of sectional area with elevation detail of dimensional area,column support area detail,concrete area detail in design of pillar.
Uploaded by:
Eiz
Luna

