Residential Duplex House DWG with Basement and Elevation Details
Description
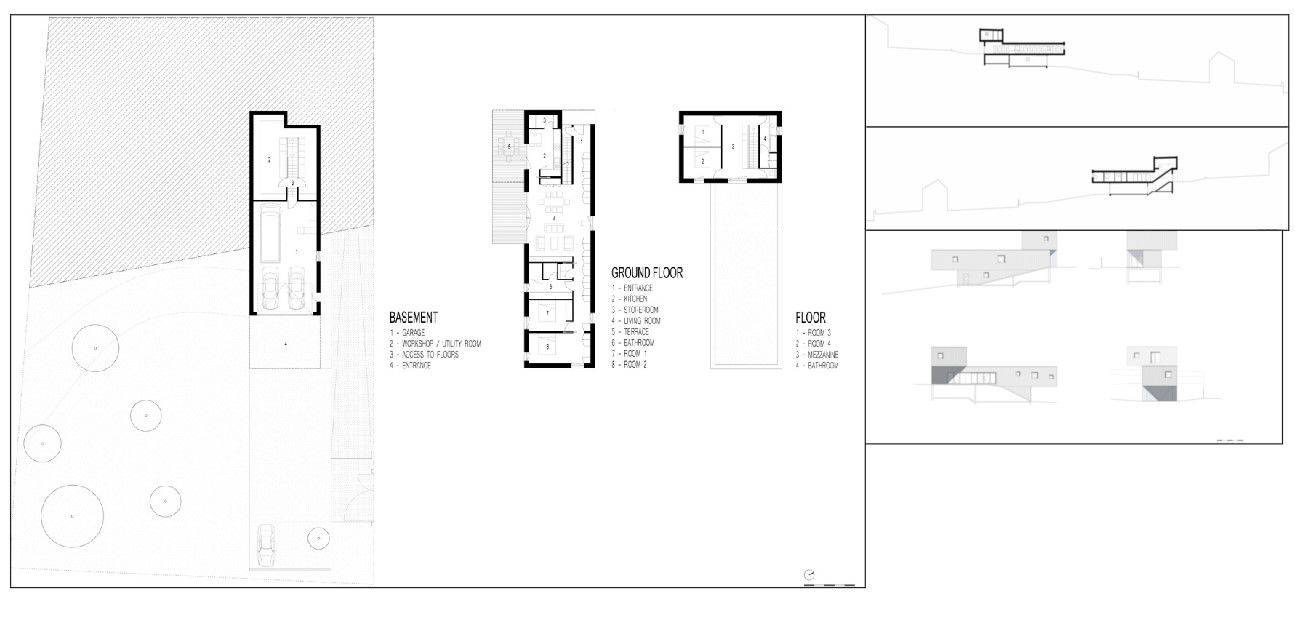
This Residential Duplex House Project DWG file includes detailed designs for the ground floor, basement layout, all-side elevations, and sectional views. The AutoCAD file offers comprehensive architectural plans suitable for architects, builders, and homeowners seeking a well-structured duplex design. The detailed layouts ensure clarity in construction and visualization, making it an ideal resource for residential projects.
File Type:
Autocad
File Size:
1.8 MB
Category::
Projects
Sub Category::
Architecture House Projects Drawings
type:
Gold
Uploaded by:
Priyanka
Patel
