Section and plan house autocad file
Description
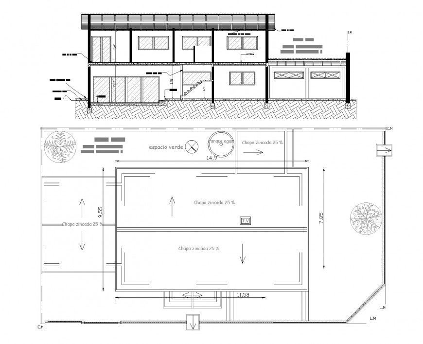
Section and plan house autocad file, dimension detail, naming detail, foundation section detail, brick wall detail, landscaping detail in tree and plant detail, stair section detail, cut out detail, north direction detail, furniture detail in door and window detail, etc.
Uploaded by:
Eiz
Luna

