Tower guard booths sectional elevation detail dwg file
Description
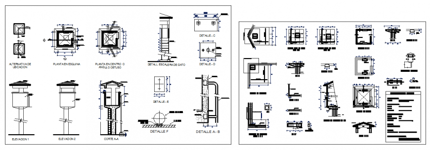
Tower guard booths sectional elevation detail dwg file,here there is front elevation of a booth,sectional detail with text detailing in auto cad format
Uploaded by:
Eiz
Luna
Tower guard booths sectional elevation detail dwg file,here there is front elevation of a booth,sectional detail with text detailing in auto cad format
Uploaded by:
Luna