Plan,elevation and sectional detail of roof structure detail dwg file
Description
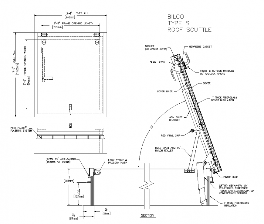
Plan,elevation and sectional detail of roof structure detail dwg file in plan and elevation with detail of wall and wall support area with cover detail area and sectional detail with pillar and lock strip detail,roof cover,roof cover latch in design.
Uploaded by:
Eiz
Luna

