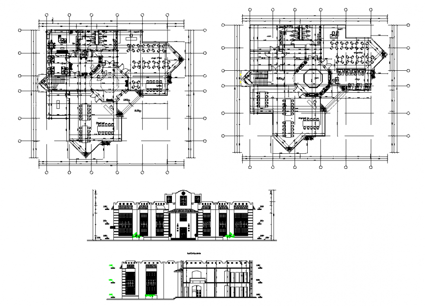
Restaurant Plan with Section and Elevation in DWG File
Description
Explore restaurant design drawings in this DWG file featuring plan, elevation, and section views perfect for professionals developing dining area layouts.
File Type:
3d max
File Size:
1.1 MB
Category::
Architecture
Sub Category::
Hotels and Restaurants
type:
Gold
Uploaded by:
Eiz
Luna

