Basement area column design with construction detail dwg file
Description
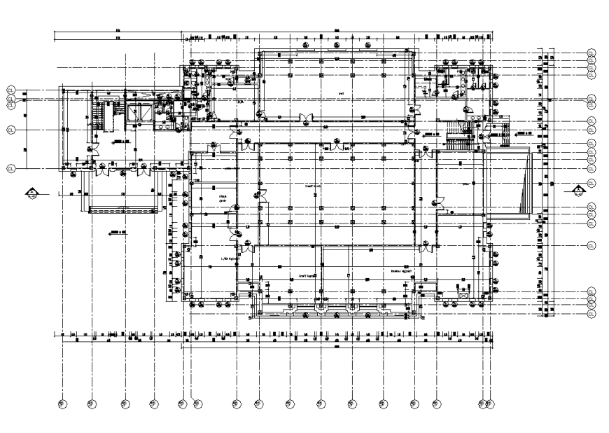
Basement area column design with construction detail dwg file in plan with detail of area distribution and design of wall,column detail,column mounting position in area of basement area in design,dimensional detail in design.
Uploaded by:
Eiz
Luna

