School classrooms construction structure details with foundation dwg file
Description
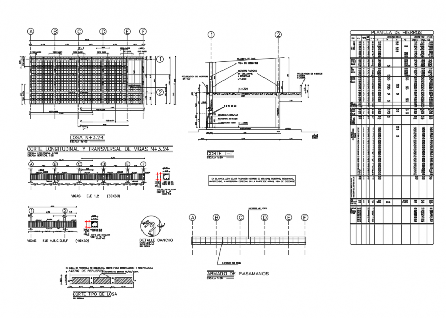
School classrooms construction structure details with foundation that includes a detailed view of Reinforced concrete parapet, Stuffed with tezontle, average thickness, Stuck with cement-sand mortar prop, Waterproofing based on prefabricated membrane, Wall concrete hollow block smooth finish, based on granitic acrylic resins, Hollow block wall heavy type of cm, common finish, joined with sand cement mortar with horizontal reinforcement and drowned castles, Galvamet monomuro panel and thick, finished with white pre-lacquered galvanized steel sheet, finished and much more of school construction details.
Uploaded by:
Eiz
Luna

