Kitchen and corridor electrical planning autocad file
Description
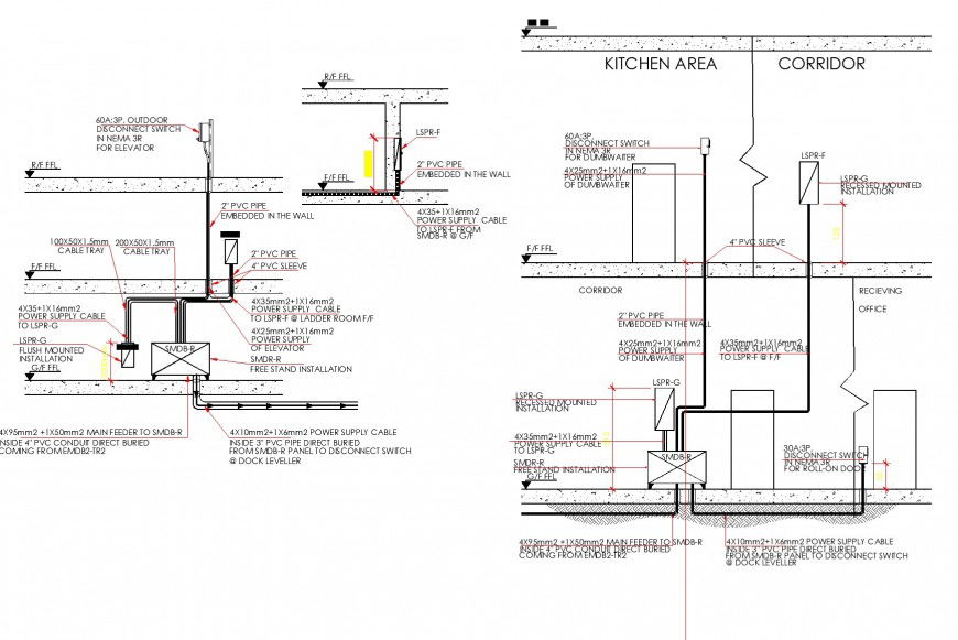
Kitchen and corridor electrical planning autocad file, dimension detail, naming detail, concrete mortar detail, concrete mortar detail, ground floor to roof floor level detail, two face power detail, electrical board detail, cut out detail furniture detail in door detail, etc.
Uploaded by:
Eiz
Luna

