Top view architecture and civil layout plan detail
Description
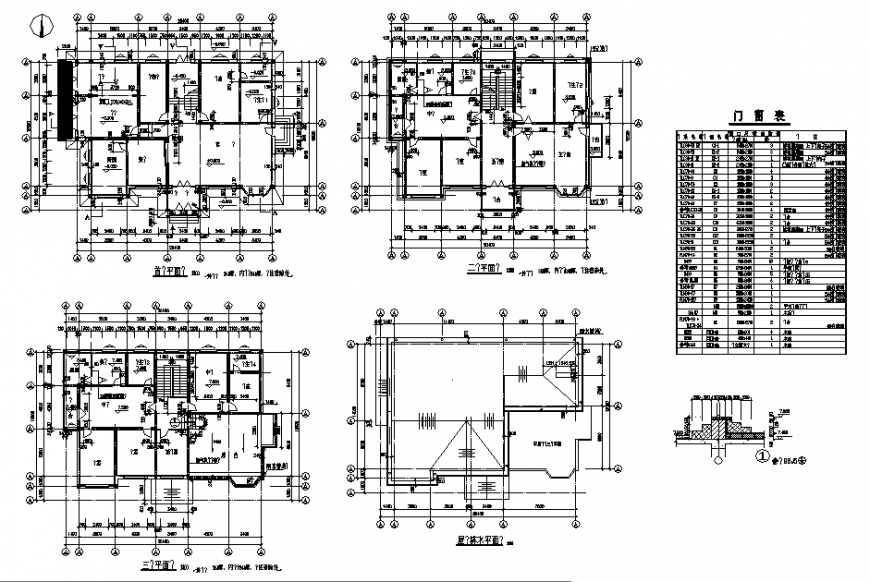
Top view architecture and civil layout plan detail, layoutl details with text detailing, sectional details with measurement and text is shown,door detailing with table detailing dwg format
Uploaded by:
Eiz
Luna

