House floor plan with constructive details in the wood framing system dwg file
Description
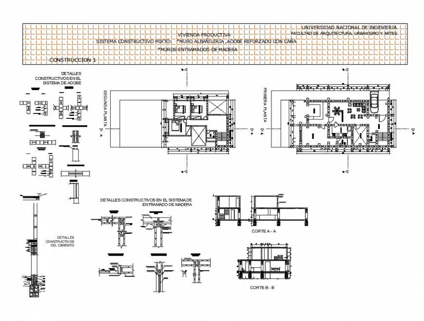
House floor plan with constructive details in the wood framing system that includes a detailed view of ground floor, first floor and terrace with main entry door, mini garden, car parking view, drawing room, living room, family hall, kitchen, dining area, indoor staircases, laundy area, balcony, bedroom, master bedroom, toilets and bathroom, indoor doors, furniture details, constructive details of the foundation, meeting of wall with door joinery, meeting of wall with carpentry window, constructive details in the adobe system, detail of vertical reinforcements, and much more of house project.
Uploaded by:
Eiz
Luna

