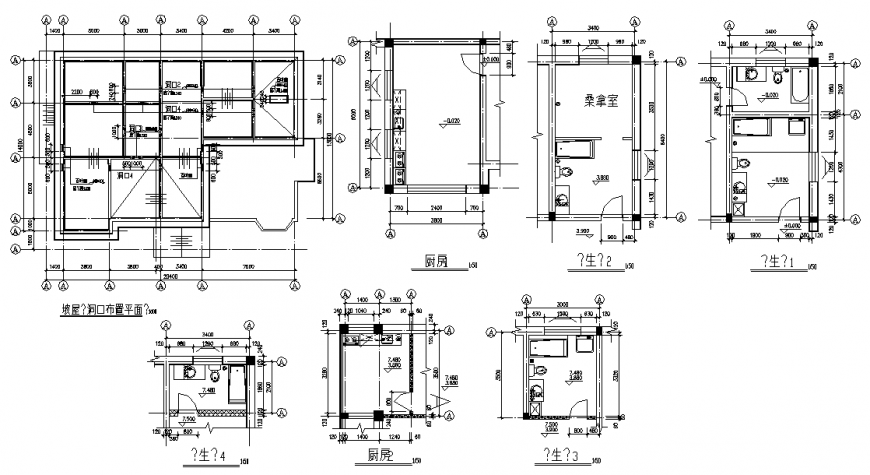
Bathroom details top view layout plan and sectional detail dwg file
Description
Bathroom details top view layout plan and sectional detail dwg file,this file contains layout plan of a bathroom ,wc detailing with text and structure detail, and partition detailing of bathroom details is shown
File Type:
DWG
File Size:
47 KB
Category::
Interior Design
Sub Category::
Bathroom Interior Design
type:
Gold
Uploaded by:
Eiz
Luna

