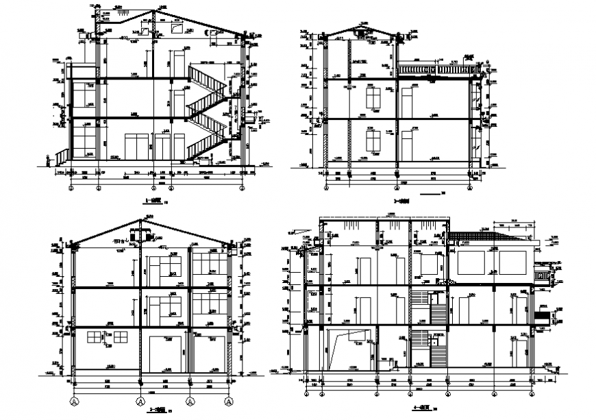
Sectional detail of a building with dimension detail dwg file
Description
Sectional detail of a building with dimension detail dwg file, here there is 2d elevation of a office, front elevation, side elevation , with dimension and text detailing in auto cad format
Uploaded by:
Eiz
Luna

