Electrical drawings and Construction detail dwg file.
Description
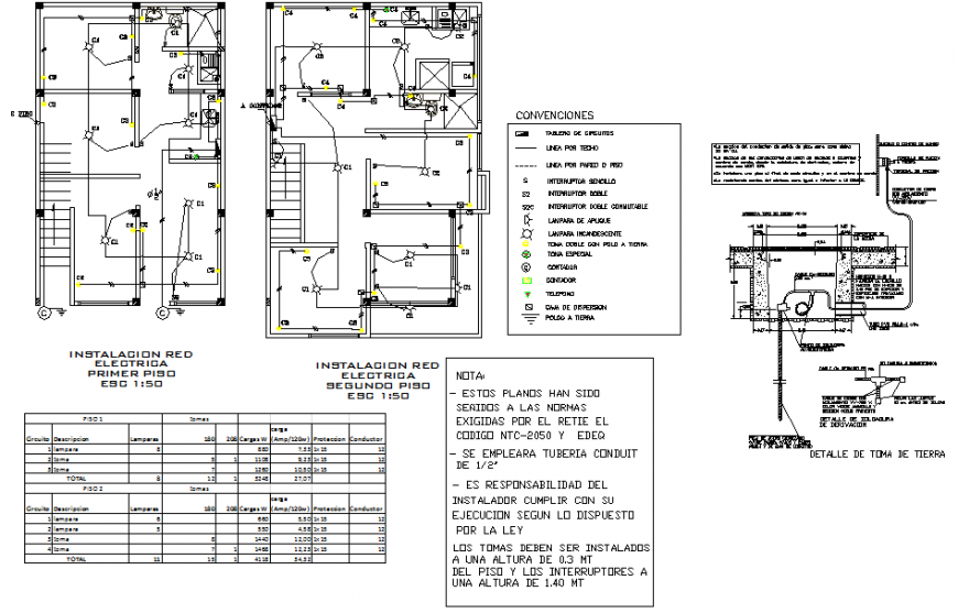
Electrical drawings and Construction detail dwg file.Drawing labels, details, and other text information extracted from the CAD file detail structure, Of the transformer, volt, Thermomagnetic, Anti-fraud cable, board, living place, Single-phase double-sided, switch, etc.
Uploaded by:
Eiz
Luna
