Armor detail iron screen with slab back ground dwg file
Description
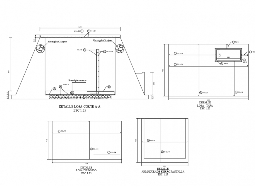
Armor detail iron screen with slab back ground that includes a detailed view of Reinforced concrete parapet, Stuffed with tezontle, average thickness, Stuck with cement-sand mortar prop, Waterproofing based on prefabricated membrane, Wall concrete hollow block smooth finish, based on granitic acrylic resins and much more of wall construction details.
Uploaded by:
Eiz
Luna
