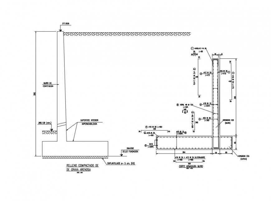
Sandy gravel retaining wall constructive cad drawing details dwg file
Description
Sandy gravel retaining wall constructive cad drawing details that includes a detailed view of emplantillado, foundations (zapata), elevation (wall) ,a63 - 42h, round with highlights, minimal length of anchorage and transfers, according to aashto 1996, statistical adhesive 1.5 kg / cm, adjustable sismico 2.0 kg / cm, typical detail armatures dilatation board (every 10m.), detail arranque muro and much more of wall construction details.
Uploaded by:
Eiz
Luna
