Residential House Design DWG with Wooden, Concrete Duplex Layout
Description
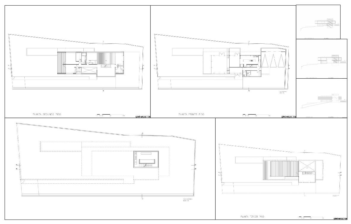
This Residential House Design DWG file features a duplex layout utilizing wooden and concrete construction materials. The design includes detailed floor plans, elevations, and sections, providing a comprehensive blueprint for residential construction. Ideal for architects, builders, and homeowners seeking a modern duplex design that combines the warmth of wood with the durability of concrete. The file offers precise measurements and design clarity for accurate construction and visualization.
File Type:
Autocad
File Size:
351 KB
Category::
Projects
Sub Category::
Architecture House Projects Drawings
type:
Gold
Uploaded by:
Priyanka
Patel
