Office Building Project with DWG File
Description
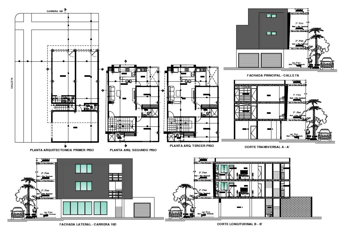
Office Building Project with DWG File.this Office design including in layout plan,cross section, slitting, architectural floor details, main decade, furniture and elevation hall, This file design draw in autocad format.
Uploaded by:
helly
panchal

