LOGIN
HOME
CATEGORIES
UPLOAD FILE
PRICING
HOUSE PLAN
ABOUT US
CONTACT US
bungalows details
Home
Categories
Architecture
Bungalow House Design
bungalows details
Uploaded by:
helly
panchal
View Profile
View Profile
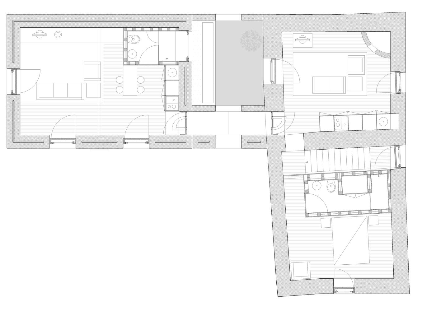
Description
A bungalows details provide in furniture details, elevation plan, layout plan, living room, bedroom,kitchen, garden. This file design draw in autocad software.
File Type:
Autocad
File Size:
2.4 MB
Category::
Architecture
Sub Category::
Bungalow House Design
type:
Gold
Uploaded by:
helly
panchal
View Profile
Download
Add to libary
find Latest
Related
Files