Reeling section plan autocad file
Description
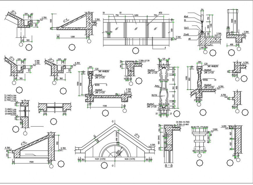
Reeling section plan autocad file, dimension detail, naming detail, concrete mortar detail, roof section detail, angle dimension detail, fix glass detail, radius detail, hatching detail, section lien detail, reinforcement detail, nut bolt detail, etc.
File Type:
DWG
File Size:
421 KB
Category::
Dwg Cad Blocks
Sub Category::
Cad Logo And Symbol Block
type:
Gold
Uploaded by:
Eiz
Luna

