Industrial plan design with architectural detail dwg file
Description
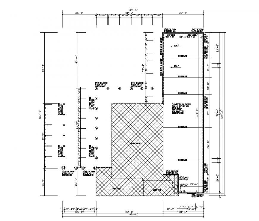
Industrial plan design with architectural detail dwg file in plan with detail of area distribution with detail of road area and detail of industrial shade area with detail of different factory area and detail of industrial shade area,parking area,working area detail in design of industrial area.
Uploaded by:
Eiz
Luna
