Armado longitudinal trabe construction cad drawing details dwg file
Description
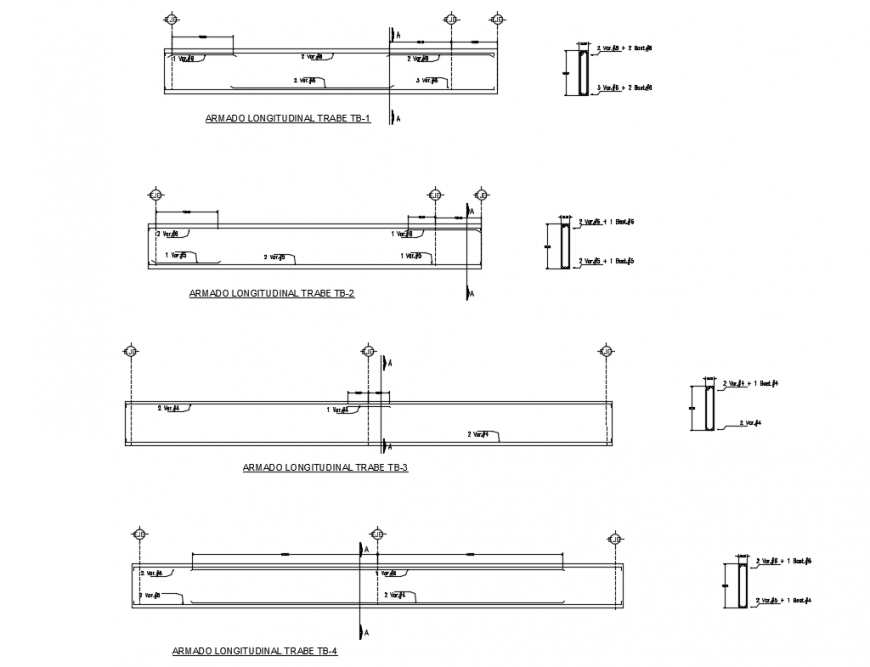
Armado longitudinal trabe construction cad drawing details that includes a detailed view of foundation, lateral typical shoe, typical central shoe, columns, foundations, shoes, tank cisterna, walls of concr. arm., beams chatas, peralted beams, foundation beams, (cement: sand: crushed stone), typical detail of reinforcement and ended of walls of masonry, detail of cisterna, cure the concrete by wet way minimum 7 days, - avoid splices and overlaps in areas of maximum effort and much more of construction details.
Uploaded by:
Eiz
Luna

