Column detail in design with construction design dwg file
Description
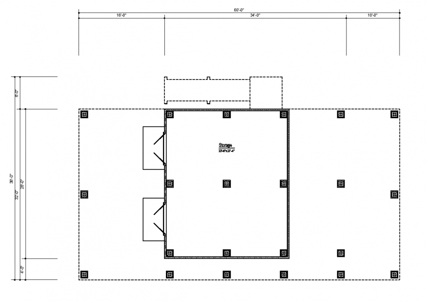
Column detail in design with construction design dwg file in plan with detail of area distribution and detail of column detail,column mounting positional detail,door area detail,wall and wall support detail,dimensional detail in design.
Uploaded by:
Eiz
Luna

