Bathroom detail autocad file
Description
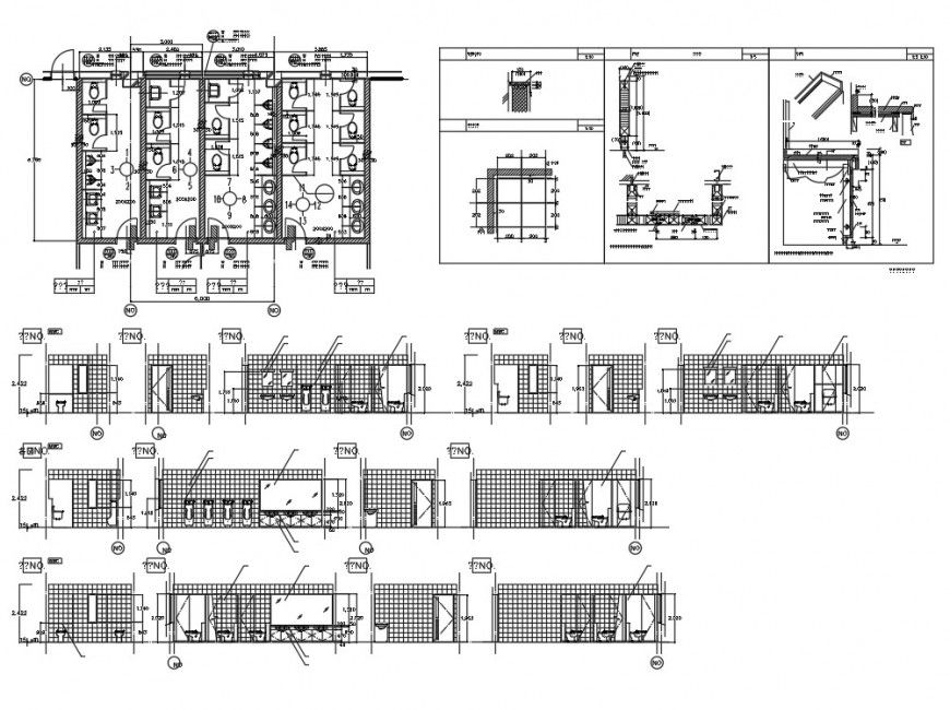
Bathroom detail autocad file, centre line plan detail, dimension detail, pipe line section detail, section A-A’ detail, section B-B’ derail, section C-C’ detail, section D-D’ detail, wall tiles detail, Toilet detail in water closed and sink detail, furniture detail in door and vent detail, etc.
File Type:
DWG
File Size:
415 KB
Category::
Interior Design
Sub Category::
Bathroom Interior Design
type:
Gold
Uploaded by:
Eiz
Luna

