Bridge elevation and bridge deck cad drawing details dwg file
Description
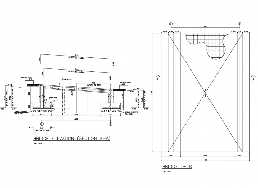
Bridge elevation and bridge deck cad drawing details that includes a detailed view of bridge elevation and sectional details, bridge deck details, dimensions details, measures details and much more of bridge details.
Uploaded by:
Eiz
Luna

