Furniture house plan detailing autocad file
Description
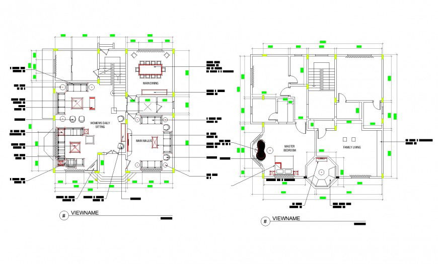
Furniture house plan detailing autocad file, dimension detail, naming detail, stair detail, brick wall detail, flooring detail, furniture detail in door, window, chair, table, sofa and cub board detail, cut out detail, column detail, T.V unit detail, etc.
Uploaded by:
Eiz
Luna
