Residential Ceiling Layout Design in DWG CAD Drawing File Format
Description
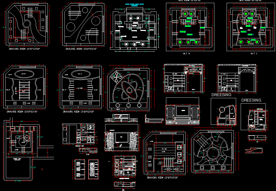
View residential ceiling layout DWG CAD file with detailed false ceiling design, lighting plan, and dimensions for professional home interior and architectural planning.
Uploaded by:

