Detailed cistern plan and section autocad file
Description
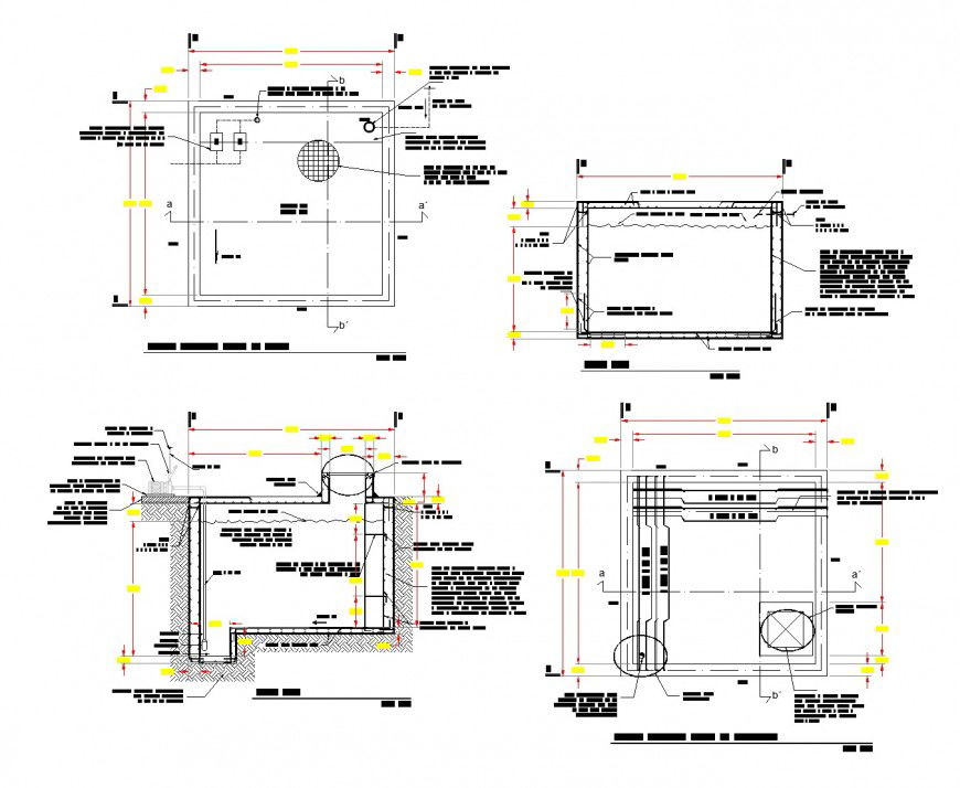
Detailed cistern plan and section autocad file, dimension detail, centre lien plan detail, section lien detail, brick wall detail, section A-A’ detail, section B-B’ detail, section C-C’ detail, specification detail, hidden lien detail, reinforcement detail, bolt nut detail, etc.
Uploaded by:
Eiz
Luna

