Foundation and roof structure plan cad drawing details dwg file
Description
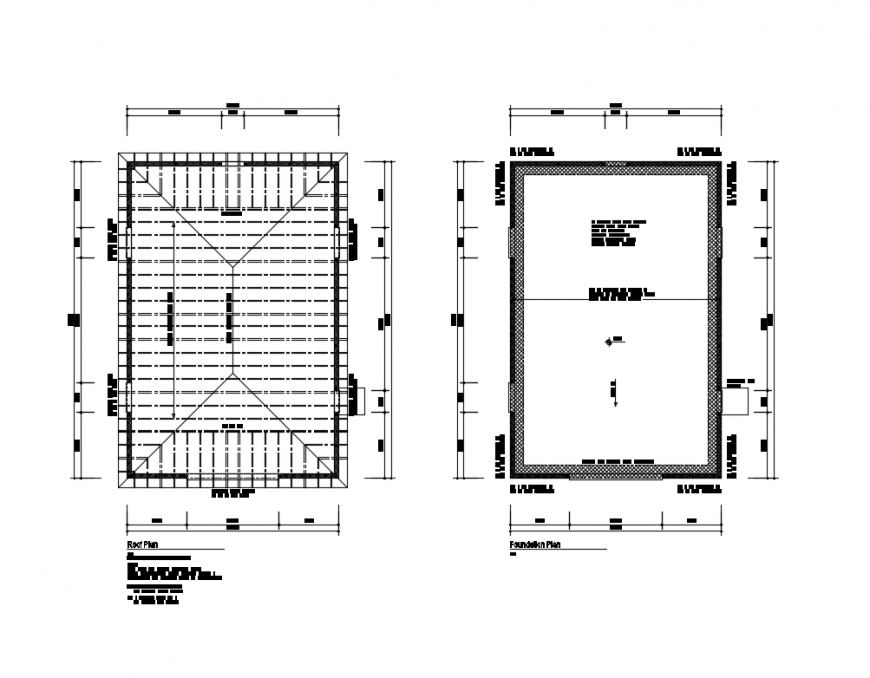
Foundation and roof structure plan cad drawing details that includes a detailed view of foundation plan, structure details, floor construction, beam construction, floor wise structure and constructive details with memory of materials, footings details, staircase construction and sectional details, steps details, dimensions, column view, beam construction, covers closure type and , soil burried wall closure type and , exterior solera, holes, interior partition, granite veneer of the country with steel supports and much more of foundation and roof details.
Uploaded by:
Eiz
Luna

