Office building furniture area drawing in dwg file.
Description
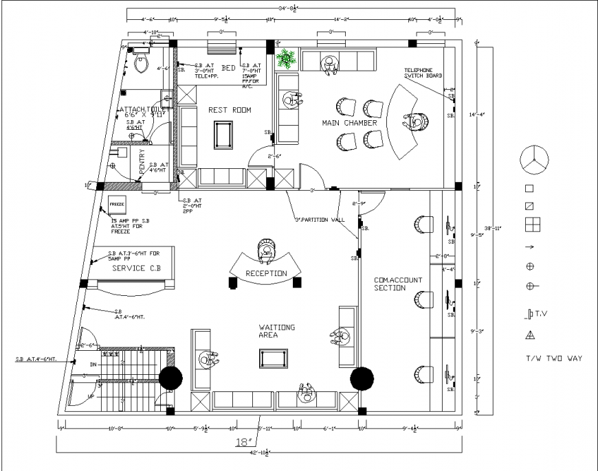
Office building furniture area drawing in dwg file. detail drawing of Office building furniture area, with area specification details, waiting for area details, reception area, pantry and utility area details, restroom details, main chamber drawing with dimensions and other details.
Uploaded by:
Eiz
Luna

